






室內設計場景工藝全書
作 者:熙地設計 著
出 版 社:江蘇鳳凰科學技術出版社
出版日期:2022年03月01日
頁 數:239
裝 幀:平裝
ISBN:9787571326067
主編推薦
深化設計是室內設計產業的一個細分領域,是從設計概念到專案落地的整個過程中至關重要的一個環節,起著承上啟下的作用。 節點不但要表達設計師對裝飾形式細節的要求,同時,它也是內部構造做法、材料、尺寸以及實施技術的直接表達與體現。 本書以圖解的形式總結了牆、頂、地113個關鍵且常用的施工節點,用3D圖的形式形象展示了場景工藝的關鍵點,分步驟介紹了施工圖節點繪製,是建築設計師、 室內設計師、施工人員、監理人員、驗收人員、房地產開發商均可參考的一本實用指導書。
內容簡介
全書包含天花飾面篇、地板飾面篇、牆身飾面篇、牆體構造篇四大類別,共113個室內裝潢關鍵且常用的施工節點。 為方便讀者閱讀,全書採用一個節點一個左右頁對應編排的形式展現,左手頁以直觀的3D圖展示各節點工藝標準、施工順序、材料、規格及規範,身臨其境,通俗易懂;右手 頁對該節點的施工圖繪製過程和標準進行展示,入門新手也能一看即懂。 有效解決了從業人員缺乏工地現場經驗、高品質標準專案經驗、深化設計經驗以及節點圖面繪製規範等難題。 本書旨在為設計師提供一本涵蓋面廣的通用節點工具書,方便大家在設計過程中快速地參考相關的節點工藝,也是入門新手可以跨行業自學的輔導書。
目 錄
1 天花飾面篇
01 懸吊式輕鋼龍骨石膏板天花板 8
02 輕鋼龍骨石膏板天花板-工藝縫 10
03 輕鋼龍骨石膏板天花板-檢修口 12
04 輕鋼龍骨石膏板天花板-燈槽造型 14
05 輕鋼龍骨石膏板天花板-石膏角線燈槽造型 16
06 輕鋼龍骨石膏板天花板-燈槽加空調風口 18
07 輕鋼龍骨石膏板天花板-燈槽加弧形角線 20
08 輕鋼龍骨石膏板天花板-暗藏式窗簾盒 22
09 輕鋼龍骨石膏板天花板-暗藏式窗簾盒低於窗 24
10 輕鋼龍骨石膏板天花板-明裝窗簾盒 26
11 輕鋼龍骨石膏板天花板-明裝式窗簾盒低於窗 28
12 輕鋼龍骨石膏板天花板-沉降縫作法 30
13 輕鋼龍骨石膏板天花板-暗藏式投影幕 32
14 輕鋼龍骨石膏板天花板-靠牆暗藏式投影幕 34
15 輕鋼龍骨石膏板天花板-斜面造型 36
16 輕鋼龍骨石膏板天花板-暗藏升降式投影機 38
17 輕鋼龍骨石膏板天花板-升降式擋煙垂壁 40
18 輕鋼龍骨石膏板天花板-鋼製防火捲簾 42
19 輕鋼龍骨石膏板天花板-固定式擋煙垂壁 44
20 輕鋼龍骨石膏板天花板-斜拉式反支撐 46
21 輕鋼龍骨石膏板天花板-反支撐常規做法 48
22 輕鋼龍骨石膏板天花板-內嵌式花灑 50
23 輕鋼龍骨石膏板天花板-不織布防火捲簾 52
24 輕鋼龍骨石膏板天花板-軟膜天花燈箱 54
25 輕鋼龍骨石膏板天花板-壓克力燈箱 56
26 輕鋼龍骨石膏板天花板-木質飾面天花 58
27 金屬格柵天花板-金屬圓管 60
28 金屬格柵天花板-長方形金屬管 62
29 輕鋼龍骨牆、頂連接處作法-陰角工藝縫 64
30 輕鋼龍骨牆、頂連接處作法-石膏角線 66
31 牆、頂連接處做法-燈槽加空調風口 68
32 卡式承載龍骨石膏板天花板 70
33 貼頂式輕鋼龍骨石膏板天花板 72
2 地坪飾面篇
01 地面沉降縫收口 76
02 混凝土基層-木地板 78
03 混凝土樓梯-木地板踏步暗藏燈帶 80
04 木龍骨基底層-木地板 82
05 鋼結構樓梯-木地板踏步 84
06 混凝土樓梯-木地板踏步 86
07 塊毯地面鋪裝及金屬踢腳板 88
08 滿鋪捲材地毯及金屬踢腳板 90
09 鋼結構樓梯-地毯踏步 92
10 混凝土樓梯-地毯踏步 94
11 混凝土樓梯-石材踏步暗藏燈帶 96
12 鋼結構樓梯-石材踏步 98
13 石材地面鋪裝-乾鋪法 100
14 石材地面明裝地漏 102
15 石材地面隱形地漏 104
16 石材地面定制型隱形地漏 106
17 泳池排水槽與明裝排水格柵 108
18 泳池隱形式排水槽 110
19 衛浴門檻石地板 112
20 淋浴區擋水門檻地板 114
21 地暖及石材地板 116
22 水磨石地板 118
23 塑膠地板地板及金屬踢腳板 120
24 環氧地板 122
25 鋼架地台石材地面 124
26 防腐木地坪 126
27 地面架空地板 128
28 玻璃地台地坪 130
29 石材地面與除塵地毯 132
30 木地板與捲材地毯交接收口 134
31 石材地板與捲材地毯交接收口 136
32 石材地板與木地板交接收口 138
3 牆身飾面篇
01 輕鋼龍骨石膏板牆體-乳膠漆飾面 142
02 混凝土及砌塊牆體-乳膠漆飾面 144
03 輕鋼龍骨牆體-硬包飾面乾掛 146
04 蒸壓加氣混凝土塊牆體-硬包飾面乾掛 148
05 輕鋼龍骨牆體-木質飾面乾掛 150
06 蒸壓加氣混凝土塊牆體-木飾面乾掛 152
07 輕鋼龍骨牆體-木飾面黏貼 154
08 蒸壓加氣混凝土塊牆體-木飾面黏貼 156
09 輕鋼龍骨石膏板牆體-壁紙飾面 158
10 輕鋼龍骨牆體-木質吸音板飾面 160
11 蒸壓加氣混凝土塊牆體-木質吸聲板飾面 162
12 輕鋼龍骨牆體-金屬板飾面 164
13 蒸壓加氣混凝土塊牆體-金屬板飾面 166
14 輕鋼龍骨牆體-金屬板飾面乾掛 168
15 蒸壓加氣混凝土塊牆體-金屬板飾面乾掛 170
16 鋼結構牆體-石材飾面濕貼 172
17 砌塊牆體-石材飾面濕貼 174
18 混凝土結構牆體-石材飾面乾掛 176
19 蒸壓加氣混凝土塊牆體-石材飾面乾掛 178
20 輕鋼龍骨牆體-軟包飾面乾掛 180
21 蒸壓加氣混凝土塊牆體-軟包飾面乾掛 182
22 輕鋼龍骨牆體-玻璃飾面 184
23 蒸壓加氣混凝土塊牆體-玻璃飾面 186
24 混凝土結構牆體-GRG 飾面乾掛 188
25 蒸壓加氣混凝土塊牆體-GRG 飾面乾掛 190
26 電梯金屬門套與牆面石材飾面 192
27 電梯石材門套與牆面石材飾面 194
28 建築帷幕牆窗-石材窗台板濕貼 196
29 建築帷幕牆窗-石材窗台板黏貼 198
30 石材牆面與淋浴玻璃隔間固定收口 200
31 玻璃帷幕牆 / 窗與輕鋼龍骨牆體交接收口(方式一) 202
32 玻璃帷幕牆 / 窗與輕鋼龍骨牆體交接收口(方式二) 204
33 暗藏蹲式馬桶水箱-乾掛石材 206
34 掛牆小便器-乾掛石材 208
35 暗藏式馬桶水箱-乾掛石材 210
36 牆面乾掛石材-沉降縫收口 212
37 石材牆面與石材踢腳板平收口 214
38 石材牆面與石材踢腳板凸收口 216
39 石材牆面與內凹金屬踢腳板收口 218
40 石材牆面與凸出金屬踢腳板收口 220
41 牆地面濕貼石材及防水 222
42 乾掛石材消防栓暗門 224
4 牆體構造篇
01 蒸壓加氣混凝土塊隔牆牆體構造 228
02 雙排輕鋼石膏板隔間牆牆體構造 230
03 混凝土導牆輕鋼石膏板隔間牆牆體構造 232
04 鋼架隔牆牆體構造 234
05 超薄鋼架石材牆牆體構造 236
06 玻璃隔牆牆體構造 238

















第二節點 室內設計施工圖節點圖集
作 者:王滄 編
出 版 社:江蘇鳳凰科學技術出版社
出版日期:2023年04月01日
頁 數:424
裝 幀:平裝
ISBN:9787571334420
主編推薦
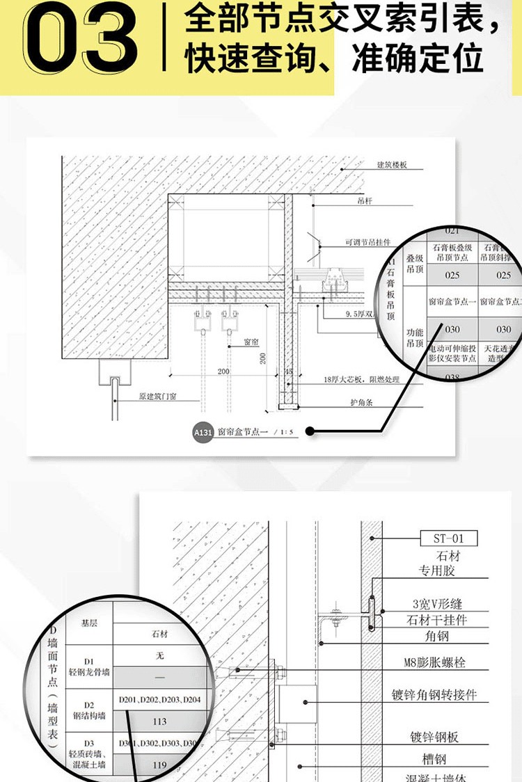
1. 作者編寫本書的初衷,是為了減少設計人員在施工圖繪製中的勞動強度、減少工作錯誤,提高工作效率及業務能力。 是專案經理掌握施工工藝的有效工具,同時也是設計師實現設計方案落地的得力助手。 2.書中以CDA圖、SU圖加實景圖的形式展示室內各部位節點設計、施工流程、裝潢材料、收口工藝等。 3. 本書節點數量龐大,為便於查找,特設計了交叉索引表,對各種組合情況節點收口、交接等進行索引編排,可快速查找到對應的節點。 4.書中設計了「課堂小知識」版塊,對施工中涉及的材料、工藝進行進一步解......
內容簡介
本書是將室內各部位施工時的節點設計、施工流程、裝潢材料、收口工藝等以圖文結合的形式進行展示、講解。 涵蓋天花板、地板、區域地板相關、地面、天花與天花、地板與地板、牆面與背景牆、牆面與天花、牆面與地面、牆面與牆面、門檻石、踢腳線、包 柱、樓梯踏步、電視背景牆、窗台板、玻璃隔板、防火捲簾軌道、變形縫、門、台盆櫃、前台家具、欄桿、帷幕牆等24個章節,658個節點。 書中節點圖依統一標準動態塊繪製,無任何雜層、雜項,可配合各設計公司的圖層轉換,便於快速達到出圖要求,可供相關專業學生、初級入行人員、施工圖深化人員、 設計 師、設計總監、監工、施工人員學習、參考。
目錄
●索引表/009
A天花板節點/019
1石膏板天花板/020
2金屬板天花板/042
3木飾面天花板/056
4透光膜天花板/062
5石材天花板/066
6礦棉板天花板/069
7玻璃、鏡面天花板/075
8GRG石膏板天花板/079
B地坪節點/081
1原樓板/082
2原樓板(附防水)/084
3原樓板(附地暖)/085
4架空地板/088
C區域地坪相關節點/091
1衛生間/092
2廚房/098
3地漏/099
4地面功能相關/105
D牆面節點(牆型表)/109
1輕鋼龍骨牆/110
2鋼結構牆/113
3輕質磚牆、混凝土牆/119
E天花與天花收口節點/125
1乳膠漆天花與其他材料天花/126
2木飾面天花與其他材料天花/126
3鋁板天花與其他材料天花/127
4石材天花與其他材料天花/128
5玻璃(鏡面)天花與其他材質天花/130
F地坪與地坪收口節點/133
1卷毯地板與卷毯地板/134
2塊毯地坪與其他材料地坪/134
3實木地板地板與其他材質地板/135
4複合地板地板與其他材料地板/136
5石材地板與其他材料地板/140
6地磚、馬賽克磚地板與其他材料地板/145
7水磨石地板與其他材料地板/150
8PVC地板地板與其他材質地板/153
G牆面與牆面(背景牆)造型收口節點/157
1乳膠漆(壁紙)牆面與其他材料背景牆/158
2木飾面背景牆與其他材料背景牆/159
3石材牆面、背景牆與其他材料背景牆/161
4馬賽克磚牆面與其他材料背景牆/164
5軟包、硬包(皮革)牆面與其他材料背景牆/166
6金屬牆面與其他材料背景牆/168
7鏡面牆面、背景牆與其他材質背景牆/170
H牆面與天花收口節點/173
1乳膠漆牆面與不同材質天花/174
2木飾面牆面與不同材質天花/178
3個濕貼石材牆面與不同材質天花/181
4乾掛石材牆面與不同材質天花/184
5牆磚與不同材質天花/187
6鏡面牆面與不同材質天花/190
7軟包牆面與不同材質天花/193
8硬包(皮革)牆面與不同材質天花/196
9金屬板牆面與不同材質天花/199
I牆面與地面收口節點/203
1牆面漆類牆面與不同材質地面/204
2木飾面牆面與不同材質地面/206
3個濕貼石材牆面與不同材質地面/210
4乾掛石材牆面與不同材質地面/213
5馬賽克磚牆面與不同材質地面/216
6鏡面牆面與不同材質地面/218
7軟包牆面與不同材料地面/221
8硬包(皮革)牆面與不同材質地面/225
9鋁板牆面與不同材質地面/229
J牆面與牆面陰陽角收口節點/233
1乳膠漆牆面與其他牆面/234
2木飾面牆面與其他牆面/236
3石材牆面與其他牆面/241
4牆磚、馬賽克磚牆面與其他牆面/245
5金屬板牆面與其他牆面/248
6軟包、硬包牆面與其他牆面/251
7玻璃牆面與其他牆面/254
K門檻石收口節點/257
1石材/258
2石材(有地暖)/259
3地板/262
4地板(附地暖)/264
5地毯/266
6陽台門檻石/267
L踢腳板節點/269
M包柱節點/275
N樓梯踏步節點/283
O電視背景牆節點/291
P窗台板節點/297
Q玻璃隔間節點/299
R防火捲簾軌道收口節點/305
S變形縫節點/309
1室內牆面變形縫/310
2天花板變形縫/312
3地坪變形縫/314
4室外牆面變形縫/317
5屋頂變形縫/318
T門節點/319
1單開門/320
2子母門/322
3超高門/324
4極簡門/326
5玻璃門/328
6內嵌式移門/330
7外掛式移門/332
8電動移門/334
9逃生門/336
10進戶門/338
11消防栓隱形門(烤漆玻璃面)/340
12消防栓隱形門(鋁板飾面)/341
13消防栓隱形門[軟(硬)包飾面]/342
14消防栓隱形門(木質飾面)/343
15消防栓隱形門(石材飾面一)/344
16消防栓隱形門(石材飾面二)/345
17坐便間開門(柱式隔間)/346
18坐便間開門(橫樑式隔間)/347
19坐便間開門(地腳式隔間)/348
20坐便間開門(懸掛式隔間)/349
21隱形門/350
22淋浴間門/352
23電梯門/354
24設備間隱形門/356
25防火捲門/358
26店面捲門/360
27旋轉門/362
28變軌移門/364
29活動折疊門/366
30巴士門/368
U台盆櫃節點/369
1台上盆一/370
2台上盆二/371
3台下盆一/372
4台下盆二/373
5台下盆三/374
6台下盆四/375
7台下盆五/376
V前台家具節點/377
1前台家具一/378
2前台家具二/379
3前台家具三/380
4前台家具四/381
5前台家具五/382
6前台家具六/383
7前台家具七/384
W欄桿節點/385
1欄桿一/386
2欄桿二/387
3欄桿三/388
4欄桿四/389
5欄桿五/390
X幕牆節點/391
附錄/403
1常用裝修材料燃燒性能等級速查清單/403
2常用給水系統流程圖/404
3常用大理石顏色、紋路速查/405
4常用木飾面紋路速查/415
5常用鋼材規格速查表/417
6常用液晶電視機規格速查表/424



NT$1299
《氣象學與生活 》弗雷德里克氣象學基礎理論知識 自然氣象科普書
NT$1299
基礎數學與生活 物理學與生活 基礎化學與生活
NT$2290
2025年新版精裝 倪海廈 圖文筆記(共6冊) 針灸大成+ 金匱要略+黃帝內經+神農本草+傷寒論+天紀解析圖文筆記 適合喜歡古中醫文化愛好者閱讀研究
NT$1980
中國民間奇幻全書【神鬼+精怪+仙妖】 (函套全3冊)特裝刷邊典藏版 中國神祇奇幻生靈魔鬼玄幻神秘奇事 民間神話故事傳說信仰民俗文化
NT$1399
中國繪畫史 +潘天壽談藝錄(共2冊)附贈五牛圖+書籤
NT$1990
【刷邊盒函版】道教大辭典 道教歷史文化現狀大型專科辭典 (附贈 神仙圖冊+知識圖譜+綾布捲軸畫+藏書票)
NT$1190
穆夏插畫集
NT$1399
攝影構圖藝術+快速提升照片水平的150個關鍵技法(共2冊)
NT$2590
女觀(主冊+副冊)共2冊 當代藝術家王依雅超大開本高清畫集 附贈【亞克力相框和4張6寸縮印畫】 經典節日禮品 七夕禮物
NT$1499
時間的力量+彩色的中國:跨越30年的影像歷史(共2冊)
NT$1590
世紀敦煌 跨百年的莫高窟影像再現 接續1600年美的歷程 100餘幅精品畫作敦煌壁畫與臨摹傳承人的故事 接觸敦煌壁畫的美好路徑
NT$2999
我等你 立體紙雕繪本【贈PVC包裝盒】天后海貝卡 經典節日禮品 七夕禮物
NT$1190
多雷插畫集 古斯塔夫 多雷原版 黑白版畫插畫經典全集
NT$1299
達芬奇手稿畫冊作品集 TASCHEN Leonardo da Vinci達芬奇素描手稿全集 英文版
NT$1299
【特裝刷邊版】全本紅樓夢 清 孫溫 繪 230幅絹本彩繪再現紅樓夢 仿古特種紙+鏤空工藝封面
NT$1698
中國傳統裝裱修復技藝+書畫修復六十年(共2冊)裝裱製作技法教程 裱框裝飾技術 老字畫復原修復工藝教學
NT$2590
證類本草箋釋(全6冊)繁體橫排
NT$1399
中國繪畫史 +潘天壽談藝錄(共2冊)附贈五牛圖+書籤
NT$1999
山海經 全本全註全譯 彩圖刷邊特製版(全3冊)
NT$1399
版式之道-日本版式設計手冊 平面設計書籍
NT$1499
物理學中的數學方法
NT$1199
四季滋補一碗湯+一碗好湯 喝出好氣色(共2冊)
NT$1699
【盒函精裝典藏版】荒誕序曲:加繆文集(全5冊) 局外人+鼠疫+西西弗神話+快樂的死+卡拉古拉 收錄60張加繆珍貴照片
NT$2590
三國演義 亞東版 盒裝刷邊特裝 (全二冊)
NT$2880
一版一印 亞東版【 紅樓夢】特裝珍藏版 全3本 紀念亞東圖書館成立110週年特裝版刷邊
NT$2980
黃帝內經 刷邊禮盒典藏版 全本全注全譯 附活學活用黃帝內經輔助讀本 (共3冊)
NT$1990
斯圖爾特微積分(第9版)全彩印刷 數學家斯圖爾特帶你走進數學殿堂 引導式教學立體化解說 微積分的百科全書 輕鬆入門微積分
NT$1799
【精裝8開】《城市 人類這樣聚集於大地》 百餘幅高畫質衛星攝影圖像 城市結構 風土人情 環境自然 攝影環保書籍
NT$2290
2025年新版大開本精裝 倪海廈 圖文筆記(共6冊) 針灸大成+ 金匱要略+黃帝內經+神農本草+傷寒論+天紀解析圖文筆記
NT$1790
【特裝刷邊盒函版】道教大辭典 吉宏忠道教百科全書 吸收百年道教研究成果 二十年匠心打造的道教文化結晶 道教歷史文化現狀大型專科辭典 (附贈 神仙圖冊+知識圖譜+綾布捲軸畫+藏書票)
NT$1490
英漢數學全書 代數、幾何與微積分初步 (美)梁家睿(Jerry Conrad Leung)
NT$3980
鳥瞰最美 國保 全書 以鳥瞰的 天地視角 重建五千年「國保」古蹟的空間敘事 專享8大好禮
NT$1399
美麗的數學+美妙的數學+尖叫的數學 (共3冊)獨具特色的數學科普書,帶你敲開身邊有趣的數學問題 趣味數學科普書籍
NT$1799
物理學與生活三部曲 牛頓駕駛學校+特務物理學+美妙的振動:音樂中的物理學(共3冊)
NT$1299
基礎數學與生活 物理學與生活 基礎化學與生活
NT$1990
【禮盒典藏特裝刷邊】玫瑰全書(限量編碼版) 贈玫瑰折疊雨傘+冰箱貼+磁性書籤+玫瑰禮盒 給優雅盛放浪漫生活的你
NT$2690
張其成全解黃帝內經(靈樞+素問 全5冊 )生命的百科全書 講透周易陰陽五運六氣 傳統醫學養生寶典 哲學醫學養生學
NT$5990
閔刻套印 莊子南華真經(全4冊)附贈 北冥有魚 或 莊周夢蝶 水晶鎮紙+帶編號藏書票
NT$3990
大國匠造 中國紅木家具製作圖譜(全6冊)椅幾類、櫃格類、台案類、沙發類、床榻類、組合和其他類 書中含實物圖 三視圖和CAD結構圖和雕刻效果圖
NT$1999
萬葉集 (全5冊)日式美學精神內核,自然風物手冊 (贈 萬葉集指南 筆記本 明信片 書籤)
NT$1990
茶與美+物與美+收藏物語+陶說 (全套4冊)日本民間茶藝陶瓷鑑賞 傳統雅生活情趣美學 (日)柳宗悅
NT$1990
【特裝刷邊禮盒版】繁體原版 食物本草 全彩印刷 來自明朝皇室的飲膳圖譜 隨書附贈5項好禮
NT$1780
植物先生:二十四節氣植物研學課 全手工鎖線裝訂,研發二十四種花草紙,與二十四篇文章、二十四幅彩圖氣息相通,形神統一,共同呈現植物之美
NT$1980
中國民間奇幻全書 神鬼+精怪+仙妖(函套全3冊)特裝刷邊典藏版 中國神祇奇幻生靈魔鬼玄幻神秘奇事 民間神話故事傳說信仰民俗文化
NT$1590
【精裝禮盒珍藏版雅昌印刷畫冊】莫奈 《追尋光影 》穆夏《擁抱繁花》 克林姆特《流金歲月》 梵高《守望星空》 隨書附贈多項週邊好禮 飛機盒包裝
NT$1599
【贈親筆信+明信片】我用一生畫絲路 趙以雄耿玉琨藝術畫集 絲綢之路風景歷史人物民族風俗遺址 高昌壁畫
NT$1990
浪客劍心:東京篇(全6冊)隨書贈送劍薰雙人PVC雙層立牌+精裝燙金函套+角色收藏卡+心回眼書籤+燙黑人物卡
NT$1990
【雙開合精裝典藏本】科學之美 最優雅的科學+最古老的學問 (共2冊)一本不走尋常路的科學書 偉大的科學概念+強大的科學魅力+細緻而神秘的美
NT$1599
【特裝刷邊版 磁扣對開禮盒】神曲 但丁傳世之作 內含135張多雷定制插畫
NT$4990
【湖州真絲宋錦函套】芥子園畫傳:翎毛草蟲花卉譜一函3卷 宣紙全彩原色高清印製 附收藏證書
NT$1399
《敦煌初見時》一印一畫典藏版 附贈2.5米超長旅行別冊+21枚手工印章 通關文牒+作者專屬藏書票+防撞手提盒
NT$1499
【飛機盒+珍珠棉防撞】(精裝大8開)天賜百色 Merasgar全新國風作品集 中國傳統色與插畫的結合插畫集
NT$2980
【特裝刷邊珍藏版】敦煌日課 (全3冊)萬物有靈+眾神召喚+文明賡續
NT$1999
豐子愷藝術通識四書 珍藏版 (共4冊) 藝術欣賞與人生的四十堂課
NT$3990
《世界國寶全書》刷邊特裝版 直通全球100座頂尖博物館,六大洲文明精粹,一冊盡收眼底 精裝大8開 附贈5項周邊好禮
NT$1599
荷蘭皇家圖書館典藏250週年精選紀念版【精裝8開】雕版手繪珍鳥圖鑑 附贈 觀鳥尋蹤筆記本+純美畫框+2張大幅珍鳥裝飾畫
NT$1399
計算機科學中的數學 信息與智能時代的必修課 麻省理工學院計算機科學與工程專業的數學課程講義
NT$1690
【全彩圖解共2冊】室內裝飾節點與構造施工+室內設計場景工藝全書 CAD圖 室內設計施工流程解析節點構造裝潢施工手冊
NT$6990
哈利波特25週年精裝限定紀念典藏版(全套7冊)
NT$1850
古建築傳統 木工+瓦工+傳統油工+傳統石工+彩畫工 (全5冊)古建築理論知識 工藝流程 關鍵技術
NT$1990
石材設計與藝術 室內裝潢中的石材選擇與運用指導 dop材料美學館編輯 大理石 石英石 花崗岩 石灰岩 洞石 板岩 砂岩
NT$2380
【繁體原版共4冊 大尺幅原稿復刻】梁思成古建築手繪圖: 圖像中國建築史+清式營造則例圖版+宋營造法式圖註+中國建築營造圖集 梁思成林徽因建築大師首繪圖
NT$1990
梁思成建築大系(全5冊)《梁思成林徽因建築藝術二十講》《梁思成註釋營造法式》《梁思成中國建築史》《梁思成古建築手繪賞析》《梁思成林徽因講故宮》
NT$2390
【親簽特裝刷邊版】山海經的博物世界 植物刷邊版 附贈(親簽+ 鈐印+4大周邊週)
NT$2390
【特製精裝刷邊典藏版】金石昆蟲草木狀 絕美中國博物手繪 繪 明代人的自然百科全書鑑 花卉冊 萱石 海錯圖 本草 科普 宮廷 書畫三絕
NT$1490
盧中南小楷 唐詩三百首+宋詞三百首(共2冊) 唐詩宋詞近距離臨摹字卡2本套 楷書字帖硬筆小楷臨摹 毛筆軟筆書法愛好者
NT$3990
【精裝大8開】中國石窟全書 盡覽1600年中國石窟之美 14省40座石窟 全景介紹+細部放大+手繪結構 一本讀懂中國石窟前世今生 附贈6項好禮
NT$1998
禪庭設計 枡野俊明作品集 精裝典藏版(共2冊) 日式大師庭院設計解析 枯山水園林景觀設計 禪宗花園 日式枯山水造景教學書籍
NT$1399
歲時請神 中國諸神眾仙百科全書 附贈風琴摺圖冊+賜福貼紙
NT$1790
星河畫卷 (親簽版)安久攝影作品集 星空攝影畫冊 天文攝影風景圖 前奔赴宇宙浪漫
NT$1399
《吳悅石授課筆記》福從天降 吳悅石畫鐘馗 吳悅石先生所作鐘馗作品輯 共有鐘馗畫像近120幅
NT$3690
【刷邊特裝典藏版】絲綢 一本書讀懂世界絲綢史 可觸摸的中國絲綢譜 絲綢生產歷史 工藝美學歷史 近代織造品 絲綢史書籍
NT$1590
【特裝刷邊版】徐霞客遊記(全2冊) [明]徐弘祖著
NT$1999
封神演義 麒麟特裝刷邊插圖版 雙面函套 隨書附贈專享6大好禮
NT$1990
【精美禮盒+首版首印紀念章+卡牌+藏書票+透卡 】思接千載:115 件文物裡的古代中國
NT$2980
中國神怪大辭典(第三版) 匯聚中國神仙鬼怪巫幻妖魔等綜合性大型字典
NT$2590
【刷邊特裝版】畫中尋宋 宋畫藝術珍藏集 重拾詩意棲居 與宋人共赴一場風雅之約 宋代美學
NT$1990
中國傳統色 故宮裡的色彩美學+色彩通識100講(共2冊)解讀中國傳統色的源流和美學特征(附贈24節氣卡+100色可撕色卡)
NT$4980
【精裝大8開 8.5KG珍藏版 】最美中國畫 中國名畫畫冊 名家代表作收錄 千里江山圖 洛神賦 女史箴步輦仕女臨摹畫冊 13張加長大拉頁 單張長達1.7米
NT$3980
【精裝大8開】 最美中國古地圖 系統化呈現原版古地圖 典藏絕版中華文明古地圖 天文輿地 城市風景 河渠水利 交通經濟軍與軍事圖 穿越時空的旅遊指南
NT$3990
【精裝8開 刷邊特裝版】中國茶葉全書 中茶文化百科全書 從喝茶到懂茶 5000年茶文化 喝茶談茶選茶訣竅 泡茶書籍
NT$1990
中國美術五千年+如何讀中國畫(共2冊)寫給大眾的美術通識讀本 煌煌畫卷 風雅傳承 5000年美的歷程
NT$6990
全唐詩(全套25冊)繁體豎排版(清)彭定求 點校整理
NT$1890
【刷邊特裝 40週年紀念版】楚辭譯註 彩圖珍藏本 250幅楚辭名物彩圖 2000條註
NT$2990
【特裝刷邊 精裝禮盒 】全唐詩 全彩插圖全4冊 布面精裝刷邊版 仿絨布磁吸函盒 附贈 鮮章編碼+花紋方巾+藏書票
NT$3980
【精裝大8開 刷邊特裝版】蘇東坡全書 隨書附贈6大好禮 600多幅珍藏級插圖,400篇傳世佳作,涵蓋了蘇東坡一生中的102位關鍵人脈、36處地理足跡、17種人生雅趣及9重身份
NT$2699
倪海廈台灣原版繁體全套8冊 繁體豎排 天紀人紀針灸傷寒周易 附贈全套視頻教程(128G 隨身碟 免下載 即插即看)
NT$1590
【原作1:1高清復刻】米芾 離騷經 行楷字帖 行書毛筆字帖 北宋經典碑帖書法臨摹字卡 1:1高清復刻墨跡本 近距離書法字帖臨摹卡
NT$1299
【原版1:1高清復刻】孫過庭 孝經冊 台北故宮博物院孤本復刻 晉唐書法範本 毛筆字帖書法 臨摹臨帖練習古帖碑帖拓本
NT$1690
【全彩圖解】進口變頻器電路圖集與原理圖解 +變頻器電路芯片級維修技能全圖解(共2冊)
NT$1199
【全彩圖解】黃帝內經 十二時辰養生法+ 十二經脈養生法(共2冊)中醫經典養生書籍 插圖講透經脈穴位 二十四節氣養生智慧妙方養生大全
NT$1560
香辛料原理與應用+食用調香術(共2冊)
NT$1399
七律指南(全2冊) [清]方元鶤 撰 黃靈庚 整理 探索七律詩體流派 沿革之選本 疏理七律詩體演變的詩史 創作七律書籍
NT$1590
鋼結構製作與安裝 + 建築鋼結構焊接新技術(共2冊)
NT$1590
【大8開】蔡兼素描靜物 石膏幾何體繪畫+對路素描幾何體 石膏靜物形體照片對畫臨摹範本(共2冊)
NT$1399
【8開】速寫易畫一本通+素描易畫一本通(共2冊)專業課件 全套石膏基礎靜物美術素描本
NT$2980
自然紀事:塞拉菲尼原畫復刻版
NT$2390
西行影紀(全3冊) 紀實攝影大師莊學本考察手稿日記 中國近代史西南地區攝影史料 攝影作品集畫冊書籍
NT$2690
馮承天 原創數學拓展普及類從系列(全套6冊)高等數學啟蒙小叢書 從解多項式方程式到阿貝爾不可能性定理 從群到李代數定理到超越數
NT$1990
【全彩圖解】魚料理:從海洋到餐桌+八十八種四季魚料理+蝦蟹料理圖鑑(共3冊)